Chi siamo
Privacy & Cookies
Contatti
Lingua
English
Italiano
Français
Español
English
Italiano
Français
Español
Account ( )
Accedi
+39 049-9070318
Per informazioni
Menu
Menu
Indietro
FILTRI AUTONOMI
TROLLY
FMV
FMVZ
MOBIL PJ
PJ VCL
BANCO ASPIRANTE
DUSTCAB
SPRAYCAB
FILTRI PER IMPIANTI
FMPX-C
FMPX-T
FMJZ-C
FMJZ-B
FMPJ-M
FCPX-T
FMVZ-C
FMVZ-SD
TUBAZIONI
Blocco4
TUBI ZINCATI
Blocco4
TUBI FLESSIBILI
Blocco4
CURVE
Blocco4
INNESTI
Blocco4
RIDUZIONI CONICHE
Blocco4
TESTE MULTIPLE
Blocco4
TRAMOGGE
Blocco4
SERRANDE MANUALI
Blocco4
SERRANDE PNEUMATICHE
Blocco4
COLLARI
Blocco4
FLANGE STAMPATE
Blocco4
SUPPORTI
Blocco4
BOCCHE ASPIRANTI
Blocco4
TERMINALI CAMINI
Blocco4
PRESE ANALISI
Blocco4
BATTIACQUA
Blocco4
SILENZIATORI
Blocco4
GIUNTI ANTIVIBRANTI
Blocco4
TAPPI TERMINALI
IMPIANTI DI ASPIRAZIONE
LEGNO
METALLI
PLASTICA
RICICLAGGIO
Home
FILTRI PER IMPIANTI
FMPJ M 120
FMPJ M 120
Potenza kW
15 kW
18,5 kW
22 kW
30 kW
37 kW
44 kW
60 kW
Condividi
Condividi
Twitta
Pinterest
help_outline
Richiesta informazioni
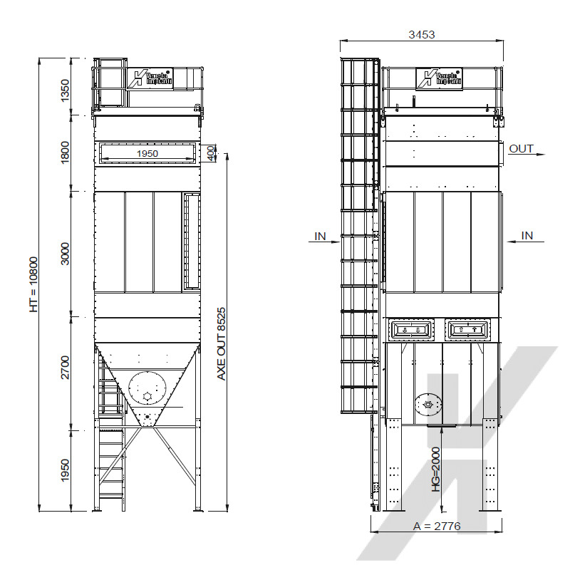
FMPJ M 120
La tua domanda
Il tuo nome
Il tuo indirizzo email
Numero di telefono
Dettagli del prodotto
Riferimento
885650
Scheda tecnica
Numero filtri
120
Tipo Filtri
Filtri a maniche
Tipo di tessuto
Feltro agugliato poliestere antistatico 550 gr/m²
Dimensione filtri
ø150xH3000
Superficie filtrante
174 m²
Sistema pulizia
Aria compressa
Consumo aria compressa
288 Nl/min
Riferimenti Specifici